Simple Elevations And Sections Design AutoCAD File
Description
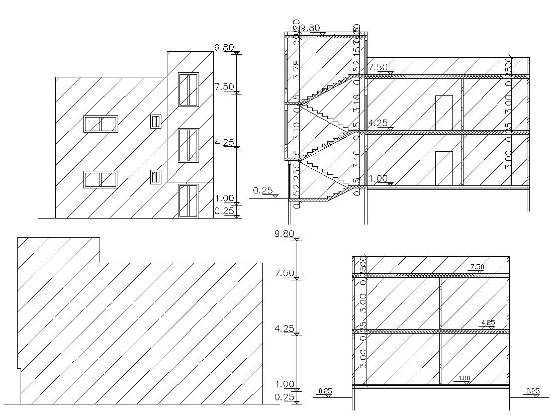
this is the two elevations and sections of simple residential house building design with floor levels details, stair standard sections, some hatching design in elevations and other more details.
Uploaded by:
Rashmi
Solanki

