House Building Floors Plan And working drawing AutoCAD File
Description
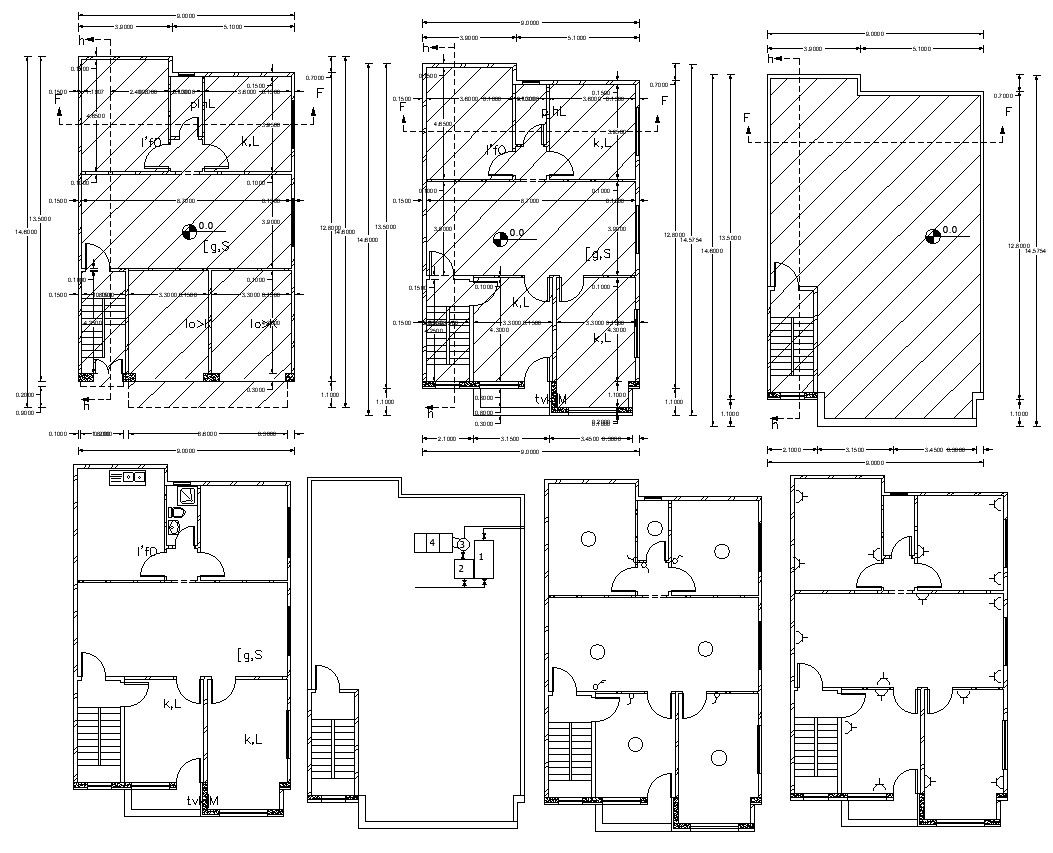
this is the many floor plans of residential building design with working drawing dimension details, terrace floor plan with solar plants details, section line in plan also added toilets and kitchen sanitary layout.
Uploaded by:
Rashmi
Solanki

