Single Story Residential House Building Design AutoCAD File
Description
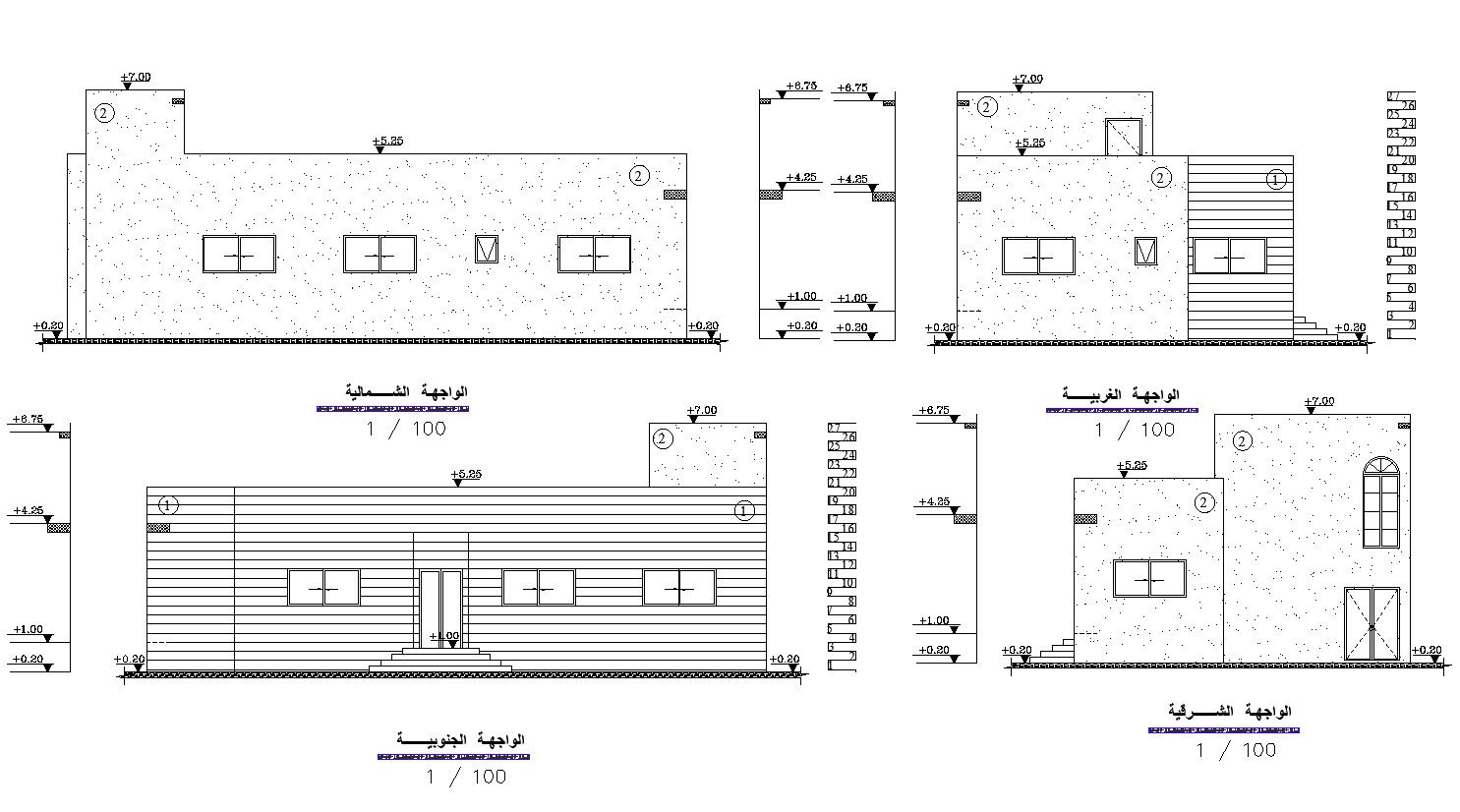
this is the simple four elevations of single floor house building design with floor levels dimension details, hatching design in elevations, doors and windows marking in elevation and sections.
Uploaded by:
Rashmi
Solanki
