Bungalow Plan And Electrical Plumbing Design AutoCAD File
Description
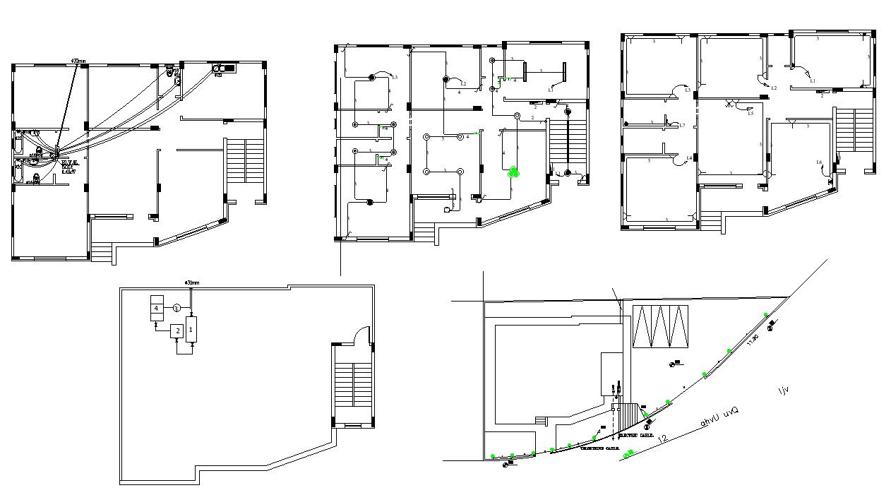
this is the drawing of residential bungalow toilet plumbing design and pipes marking in plan, electrical layout design, car parking on the ground floor,terrace floor plan with solar system and other more details.
Uploaded by:
Rashmi
Solanki

