Single Story House Elevations And Section Architectural DWG
Description
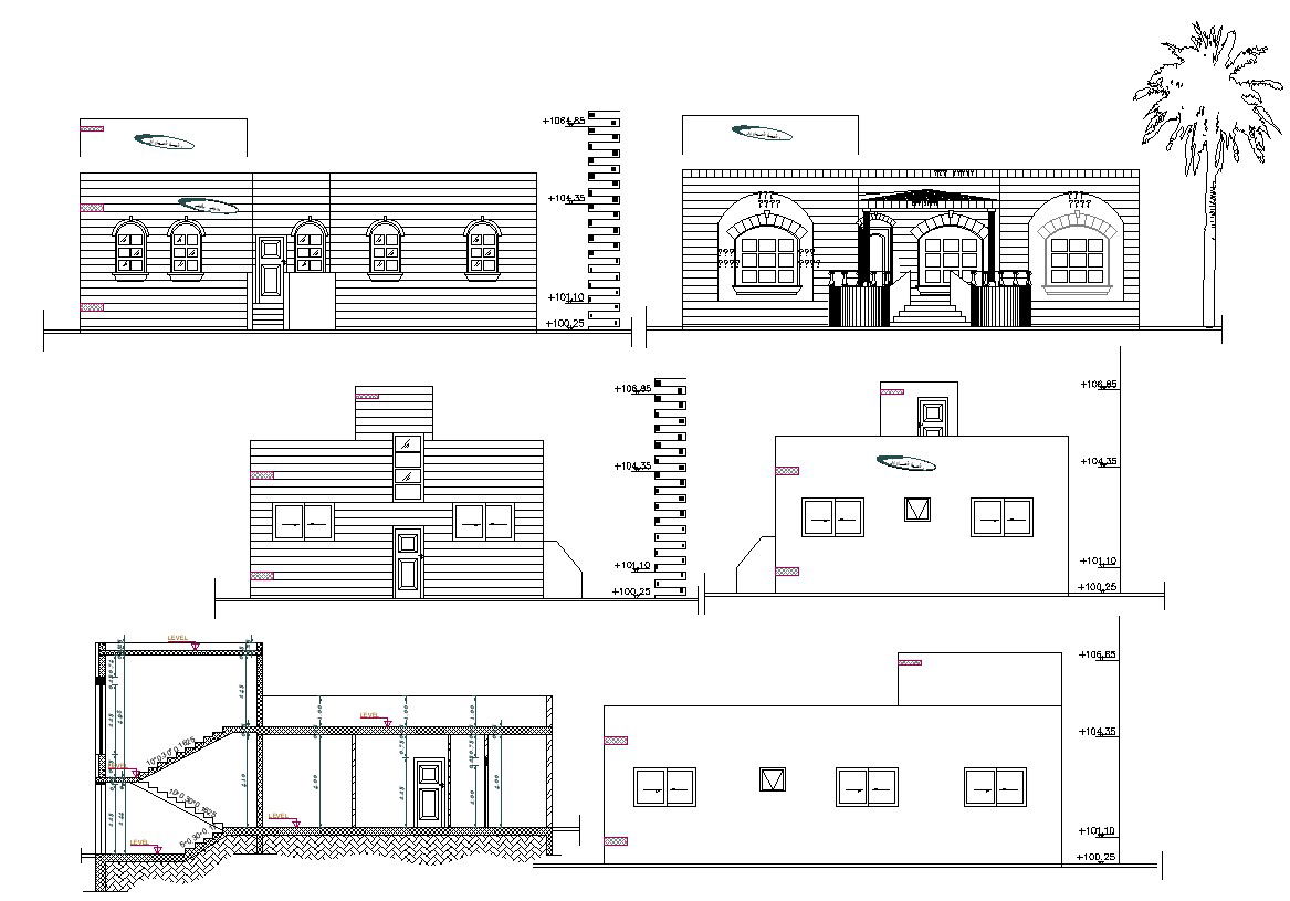
this is the drawing of small house design with floor levels dimension details, some hatching design in elevations, stair standard section with structural detail, round shape whether shade and this is the simple desing of house.
Uploaded by:
Rashmi
Solanki
