Single Story Simple Elevations And Sections Of House Building
Description
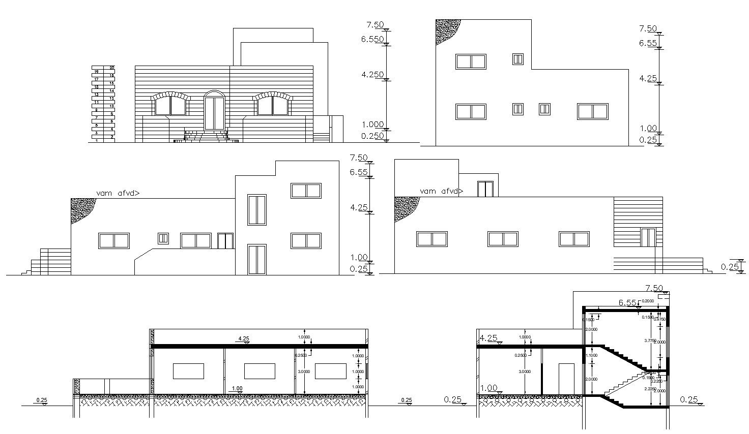
this is the drawing of simple elevations residential building design and sections includes floor levels dimension details, hatching design in elevations, standard stair sections and other details.
Uploaded by:
Rashmi
Solanki

