Residential Bungalow Foundation Design AutoCAD File
Description
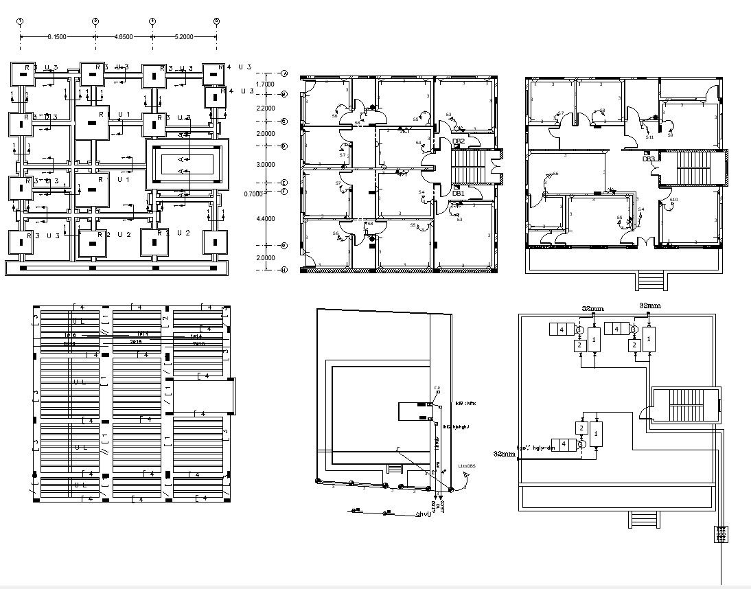
this is the drawing of column foundation details with centerline and dimension details, beam and column marking in slab plan, terrace floor plan with solar plants details, electrical layout plan, and other more details related to house.
Uploaded by:
Rashmi
Solanki

