2 BHK Apartment Building Plan With Dimension AutoCAD File
Description
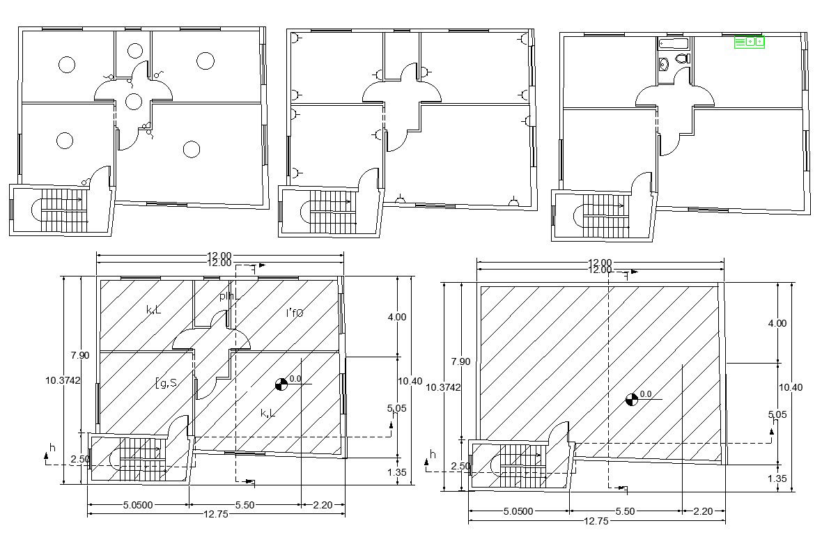
this is the drawing of 2bhk apartment planning with working dimension details, and terrace floor plan, toilets and kitchen sanitary detail, in this planning added drawing room, kitchen, bedrooms, dining area and other more details.
Uploaded by:
Rashmi
Solanki

