Residential Building Electrical And Plumbing Design DWG
Description
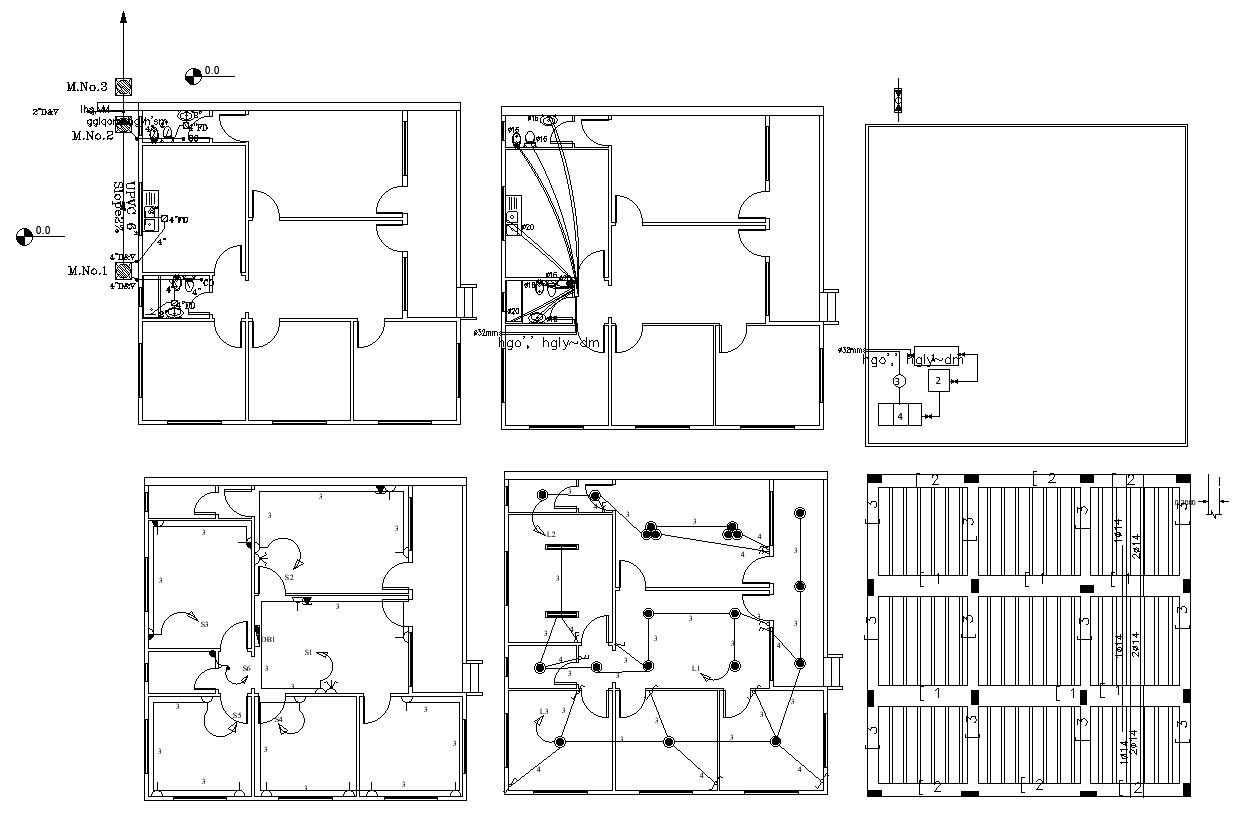
in this drawing added house electrical plan, plumbing design, beam and column marking in slab also added reinforcement bars calculation details, terrace floor plan and solar plants marking in it. and other more details
Uploaded by:
Rashmi
Solanki

