House Elevations And Sections Design Architectural Drawing
Description
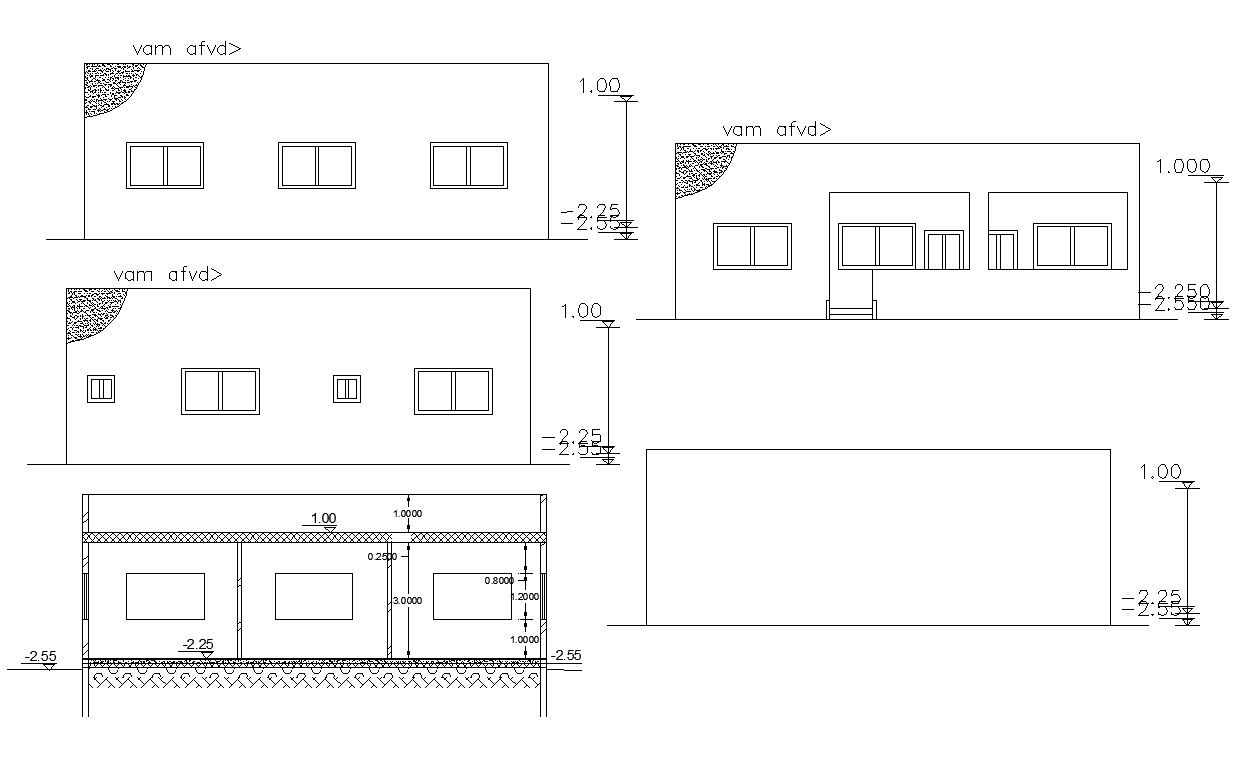
simple single floor residential house elevations and section design in AutoCAD Drawing with floor levels dimension details, floor material details download the CAD file and use in related project.
Uploaded by:
Rashmi
Solanki

