Lavish Bungalow Working Drawing With Planning DWG File
Description
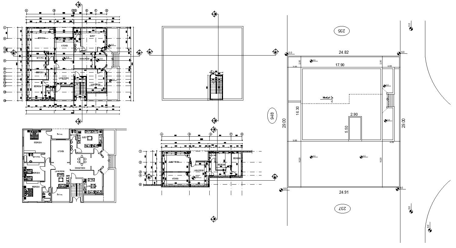
this is the drawing of huge bungalow planning with furniture layout design, working drawing dimension details, terrace floor plan with stair cabin design, section line in the plan, in this planning added drawing room, kitchen, bedroom, living room, foyer and other more details in this drawing.
Uploaded by:
Rashmi
Solanki

