Architectural Drawing Of Two Floors House Elevations Sections
Description
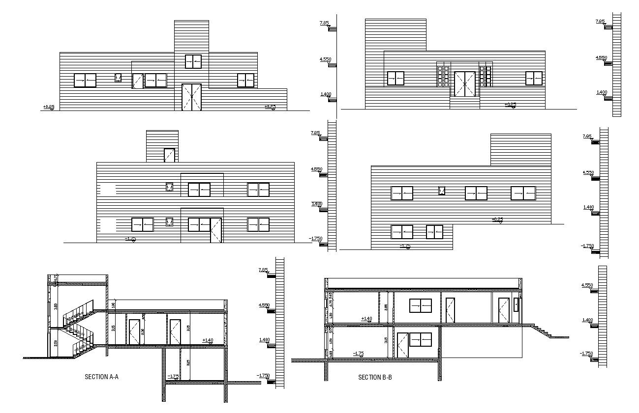
this is the drawing of four side elevations and two sections of simple residential building design with groove marking in elevation, floor levels dimension details, some hatching details in this drawing.
Uploaded by:
Rashmi
Solanki

