Plot And House Demarcation With Architectural Planning DWG File
Description
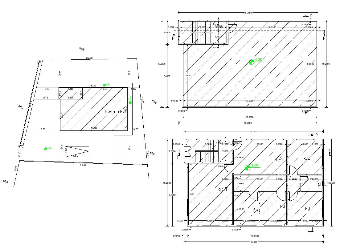
this is the drawing of bungalow layout design with terrace floor plan, site and building marking details, in this drawing added drawing room, kitchen, bedrooms, toilets, stairs and parking in ground floor plot drawing.
Uploaded by:
Rashmi
Solanki

