Four BHK Apartment Plan With Working Drawing AutoCAD File
Description
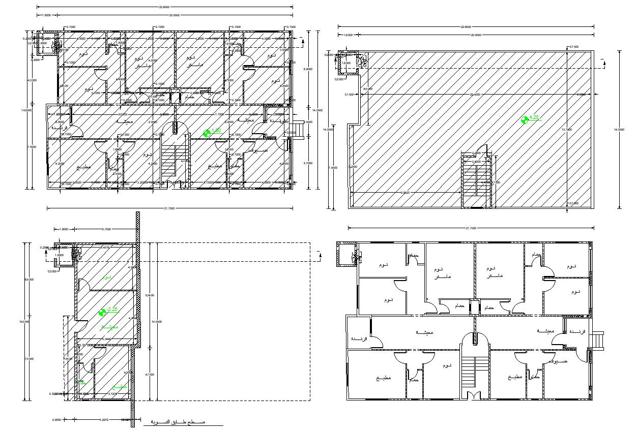
this is the drawing of apartment building desing with working drawing dimension, terrace floor plan with stair cabin details, section line in plan.in this planning added big drawing-room, four bedrooms, kitchen, dining room, toilets and other details.
Uploaded by:
Rashmi
Solanki

