Structural Column Foundation Sections Design DWG Drawing
Description
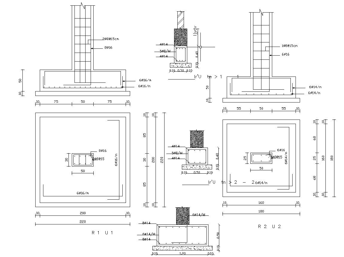
this is the structural drawing of many column footing sections and plan details with dimension , reinforcement bars calculation, plinth beam marking in this drawing and other more details in it.
Uploaded by:
Rashmi
Solanki

