Single Storey House Section Elevation Design CAD Drawing
Description
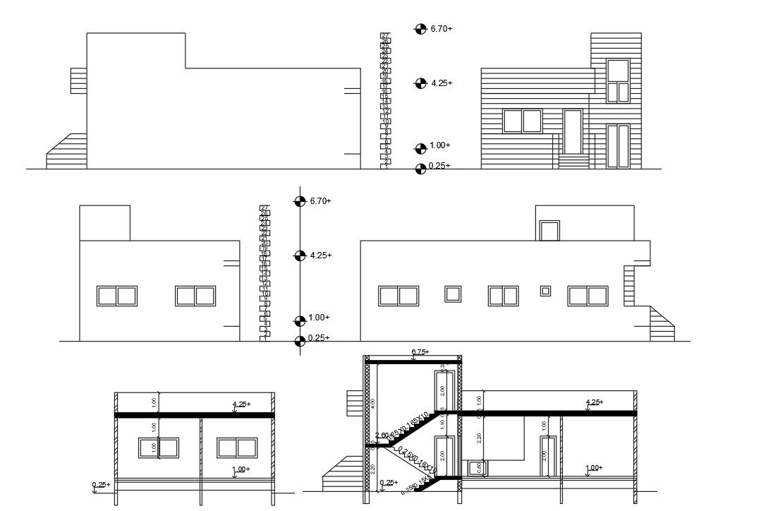
download single storey house building sectional elevation design which is viewed from a number of different angles and can also go with different outdoor designs, and each design place a significant role in what the final look will be present in AutoCAD drawing.
Uploaded by:
