Bungalow Cross Section Drawing DWG File

Bungalow Cross Section Drawing DWG File
Profile

Uploaded by:

Komal

Description
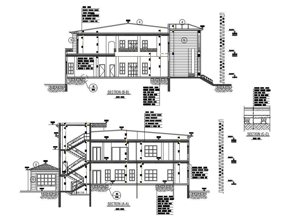
2D CAD drawing of bungalow building cross-section drawing with dimension detail, RCC slab, staircase and floor level detail. download DWG file of sloped roof bungalow section drawing.
Profile

Uploaded by:

Komal

find Latest

Related Files

WhatsApp Chat