Small House Sectional Elevation Design DWG File
Description
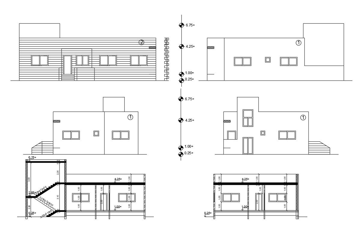
2d CAD drawing of single storey small house building section drawing and elevation design of all side view with dimension detail. also get more detail of building structure design, RCC floor, slab and staircase drawing. download AutoCAD house design DWG file.
Uploaded by:

