2 BHK House Construction Working Plan AutoCAD Drawing
Description
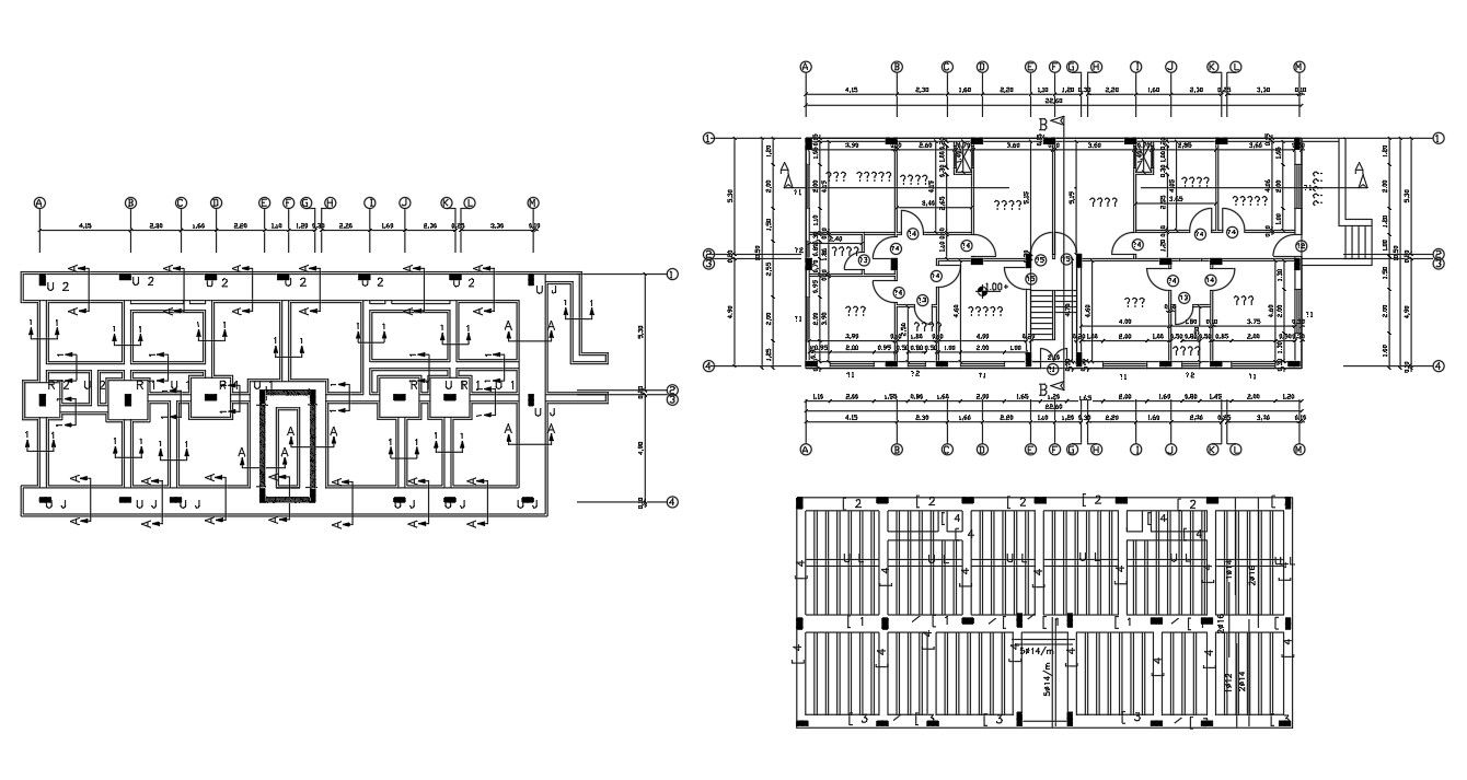
2d CAD drawing of 2 bedroom house construction working plan include foundation column with excavation layout plan, reinforcement slab joint with end hook up bar detail. download DWG file of house construction working plan with centre line and dimension details.
Uploaded by:

