Apartment House Floor Plan With Dimension CAD Drawing
Description
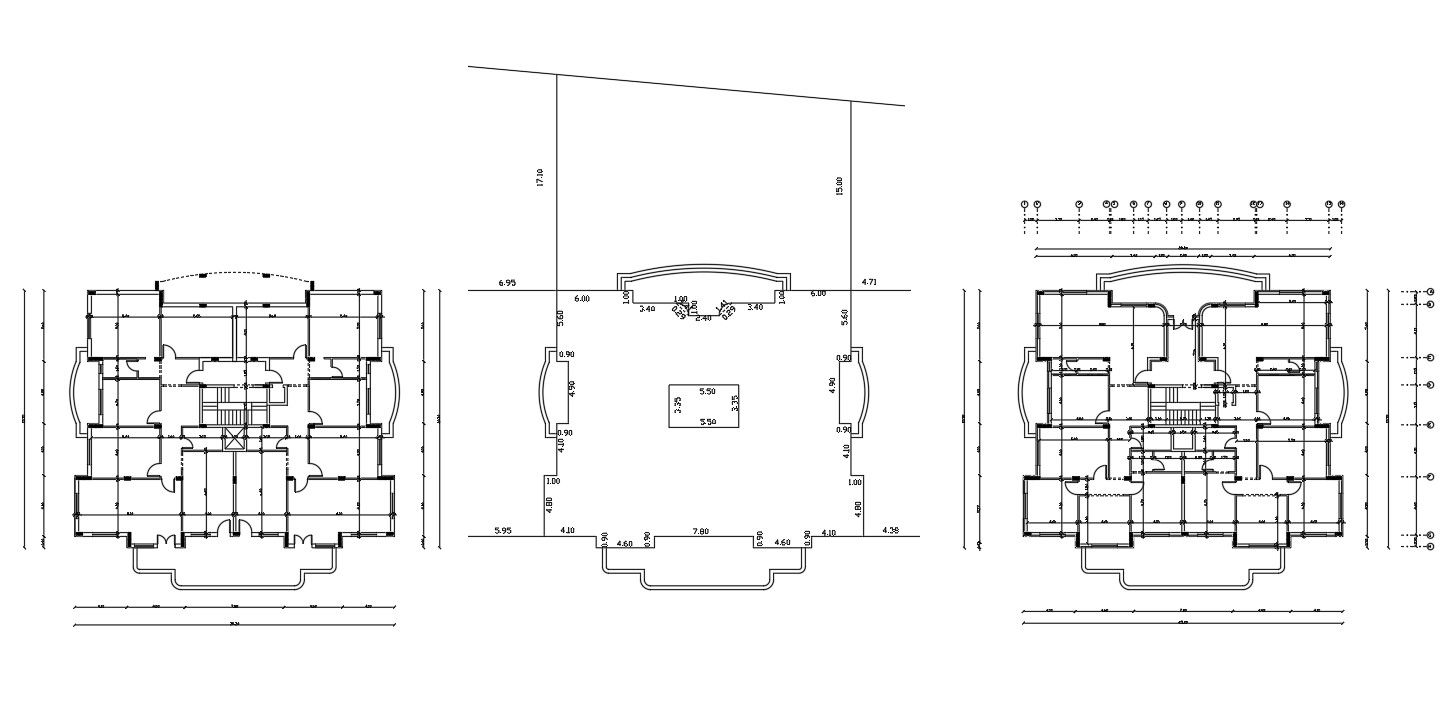
The architecture apartment cluster plan CAD drawing includes floor plan with 4 unit house drawing, and working dimension detail in DWG file. download DWG file of apartment house floor plan AutoCAD drawing.
Uploaded by:

