Free Download Grab Bucket Crane With Dimension AutoCAD File
Description
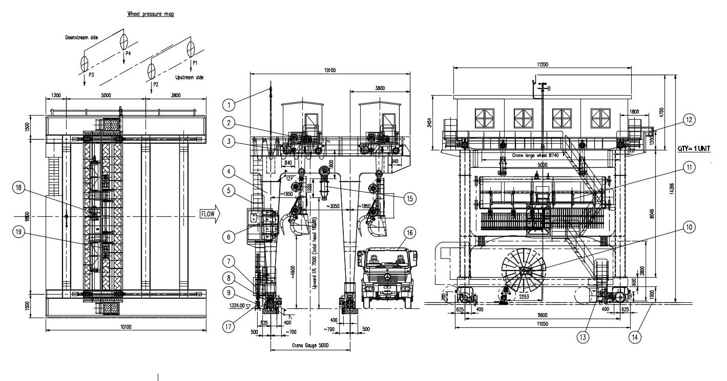
this is the drawing of the grab bucket mechanism includes all kinds of related details like dimension, how to fix this ms part, some railing design. this is the drawing of factory internal parts.
File Type:
DWG
File Size:
3.1 MB
Category::
Mechanical and Machinery
Sub Category::
Mechanical Engineering
type:
Free
Uploaded by:
Rashmi
Solanki

