Modern House Building Sectional Elevation Design DWG
Description
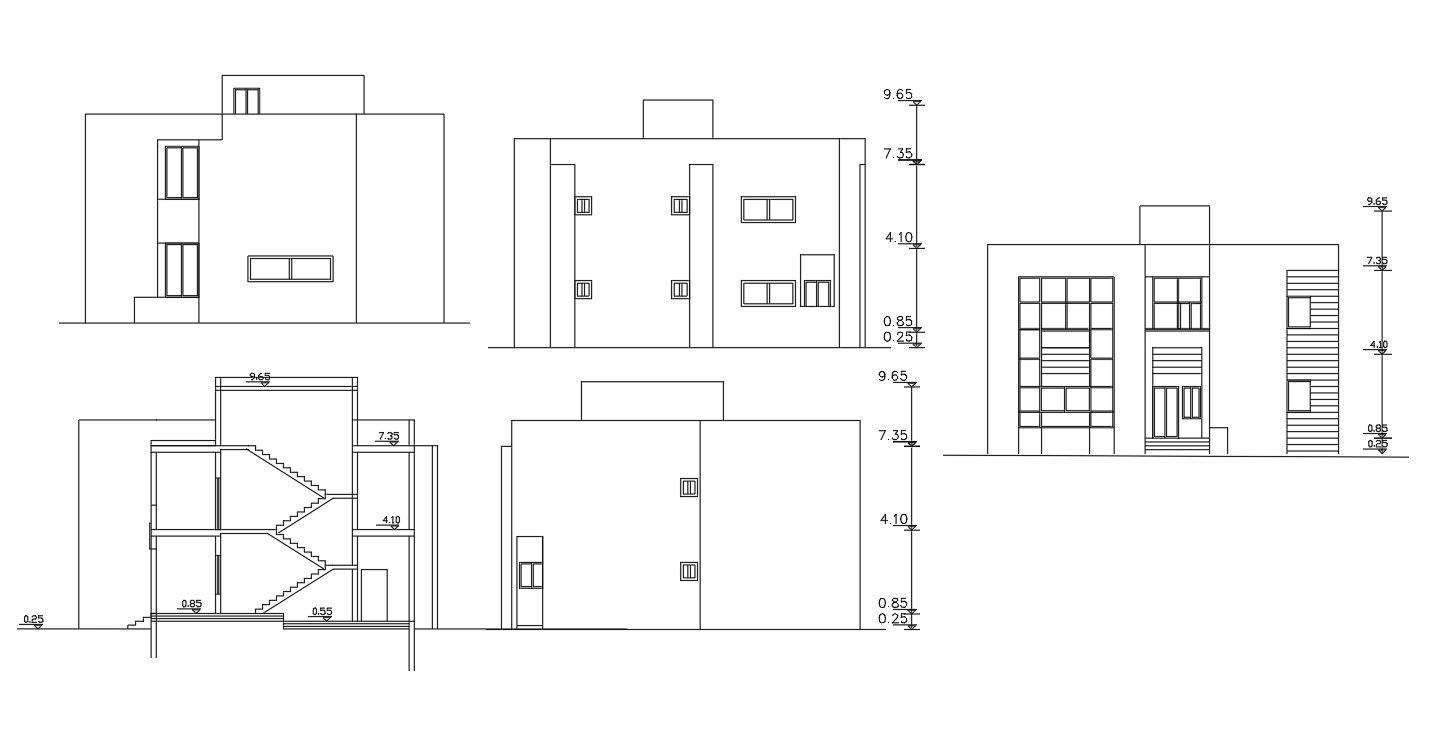
2d CAD drawing of residence modern house building section drawing and elevation design includes building floor level structure detail and number of view of different angle design with dimension detail.
Uploaded by:

