3 Bedroom House Construction Project AutoCAD Drawing
Description
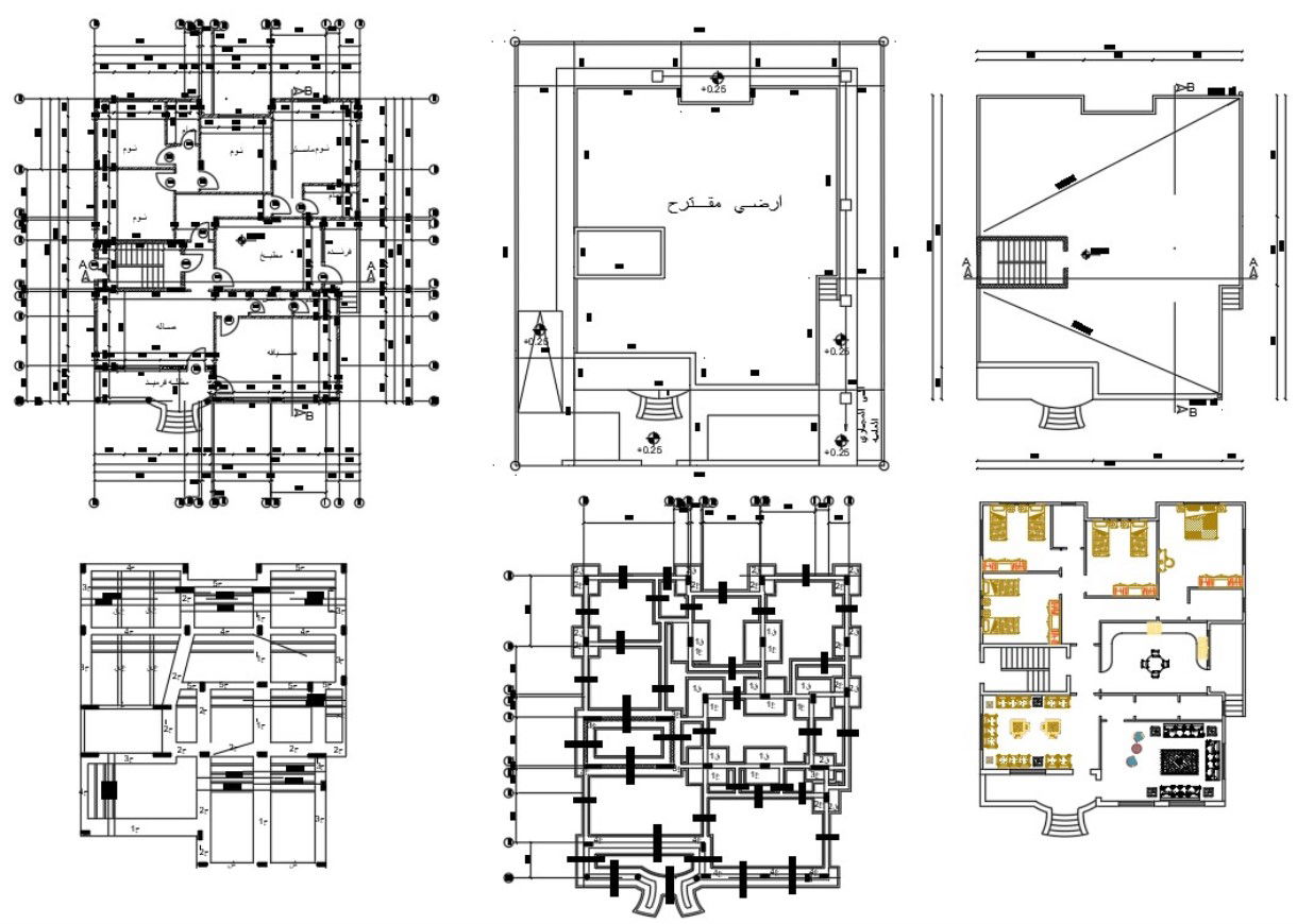
AutoCAD drawing of 3 bedroom house bungalow plan CAD drawing includes ground floor plan and terrace floor plan with working dimension and centre line plan design. download house project drawing and get more detail about foundation column layout plan, RCC slab bar, excavation plan and furniture layout drawing.
Uploaded by:

