AutoCAD Construction Working Plan Of House Project Drawing
Description
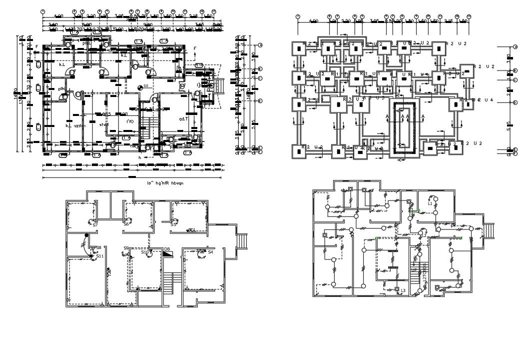
The civil engineer construction drawing of floor plan, column foundation layout plan with excavation design and all dimension detail for perfection margine building design. also has an electrical ceiling layout plan and wiring plan in CAD drawing. download DWG file of construction working plan CAD drawing.
Uploaded by:

