Factory Building Foundation Design With Cooling Tower Plan
Description
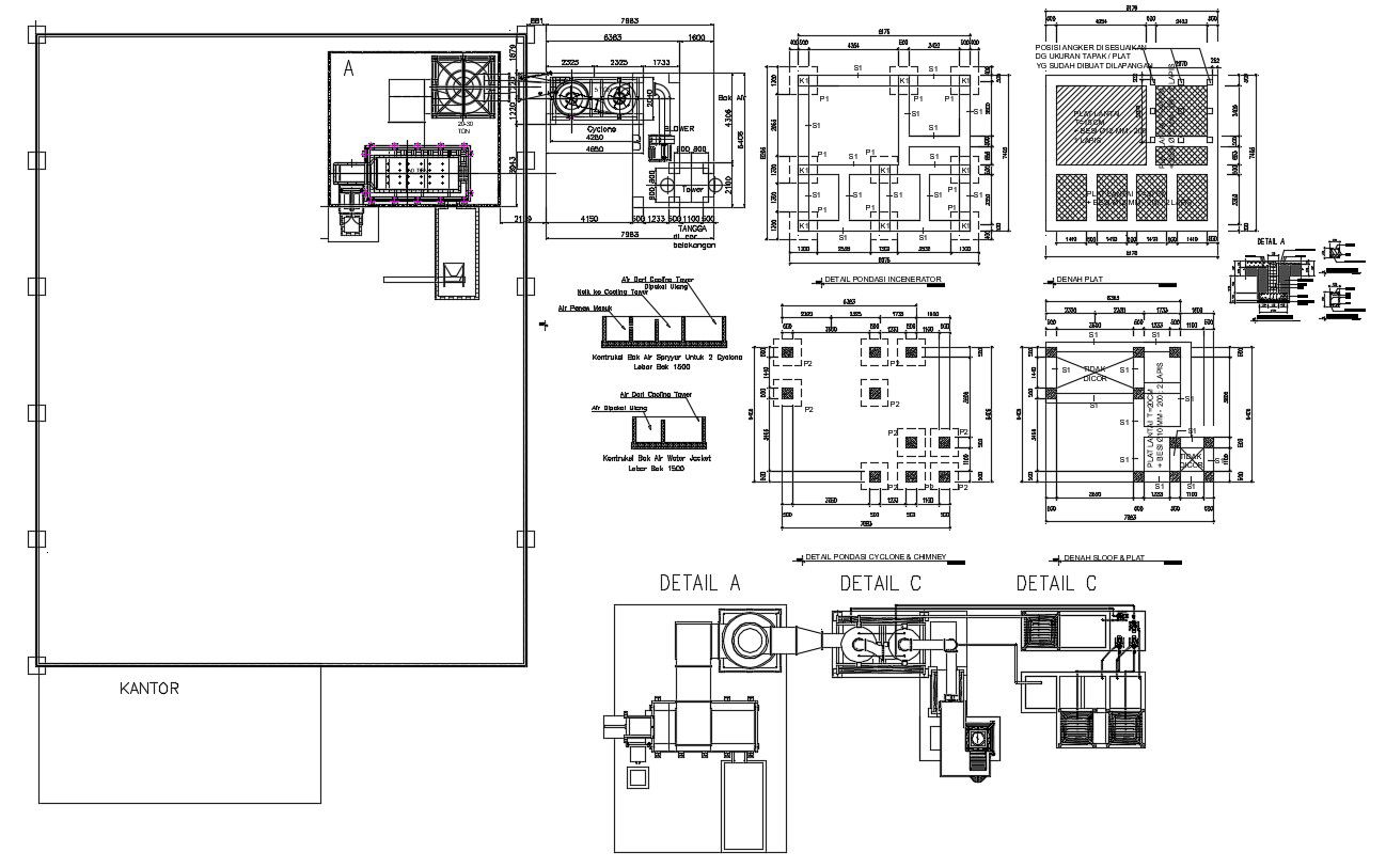
this is the drawing of column footing design with excavation line plan, working dimension details, plinth RCC details, and cooling tower plan, factory site and other more details,
Uploaded by:
Rashmi
Solanki

