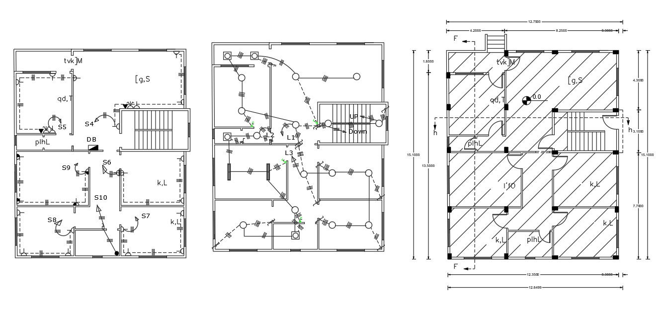
Residential Building Electrical Floor Plan With Working Drawing
Description
this is the drawing of a residential building house electrical layout plan with modern architectural design of the house and working drawing plan, column layout design in it.
Uploaded by:
Rashmi
Solanki
