Apartment Building Floors Plan With Sanitary Design DWG
Description
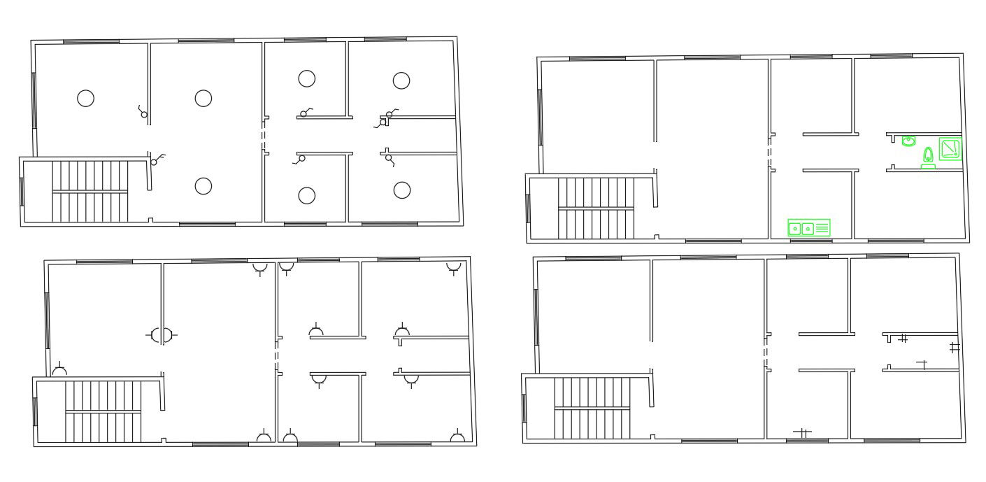
this is the drawing of four floors planning of residential building design with toilets and kitchen sanitary layout plan, doors and windows marking in it.in this drawing added stair, drawing room, kitchen, bedrooms, toilets, passage, balcony and other more functions.
Uploaded by:
Rashmi
Solanki

