Huge Lavish House Design With Column Layout DWG File
Description
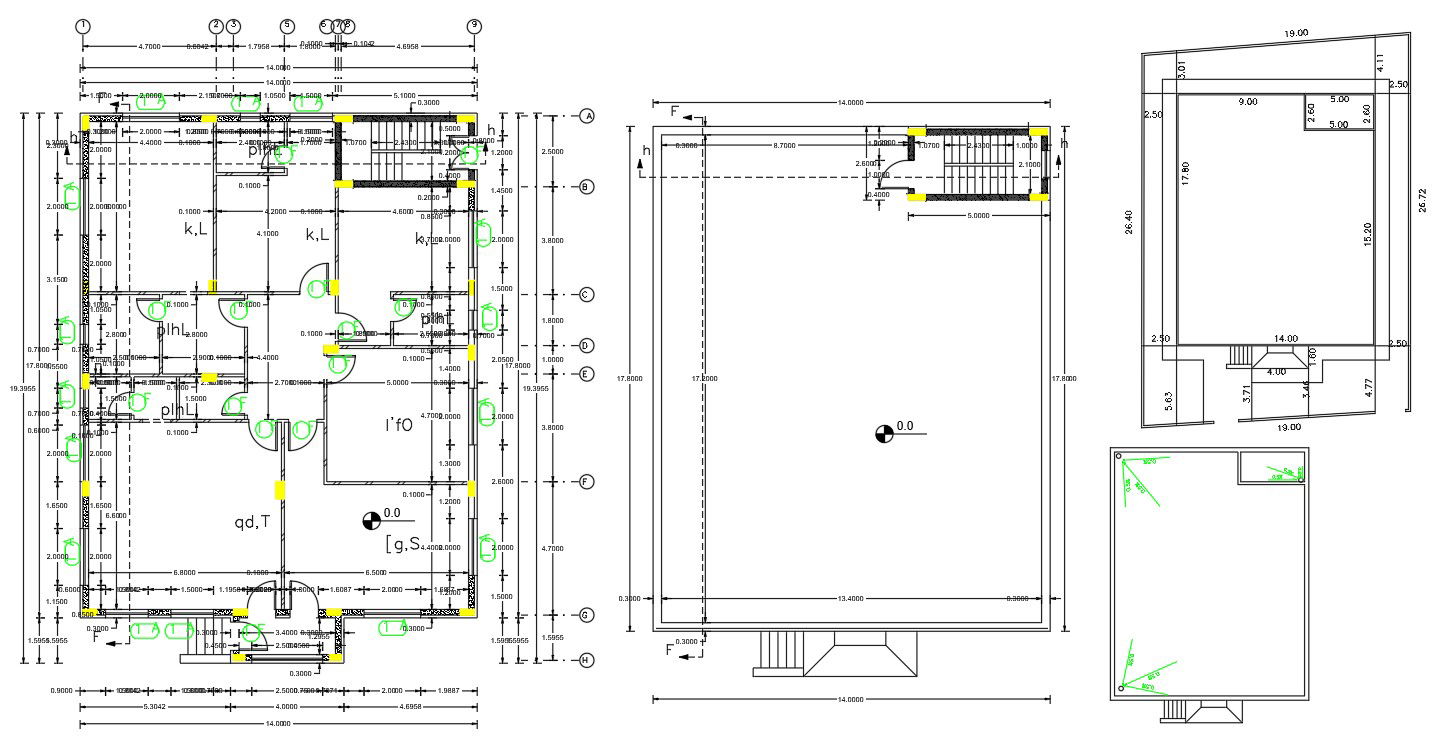
this is the drawing of architectural residential house design with working drawing dimension details, structural column layout, terrace floor plan with stair cabin details, rainwater pipes design in terrace, site demarcation details.
Uploaded by:
Rashmi
Solanki

