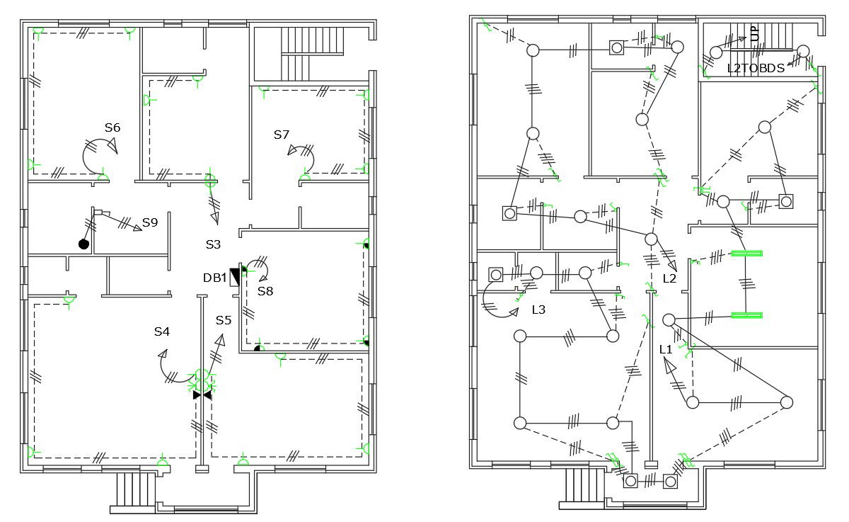
Big House Electrical Layout Plan AutoCAD Drawing

Big House Electrical Layout Plan AutoCAD Drawing
Profile

Uploaded by:

Rashmi

Solanki

Description
this is the drawing of two floors of residential plan with electrical layout plan, in this drawing modern house plan and other more function.
Profile

Uploaded by:

Rashmi

Solanki

find Latest

Related Files

WhatsApp Chat