Structural Column Foundation With Dimension DWG File
Description
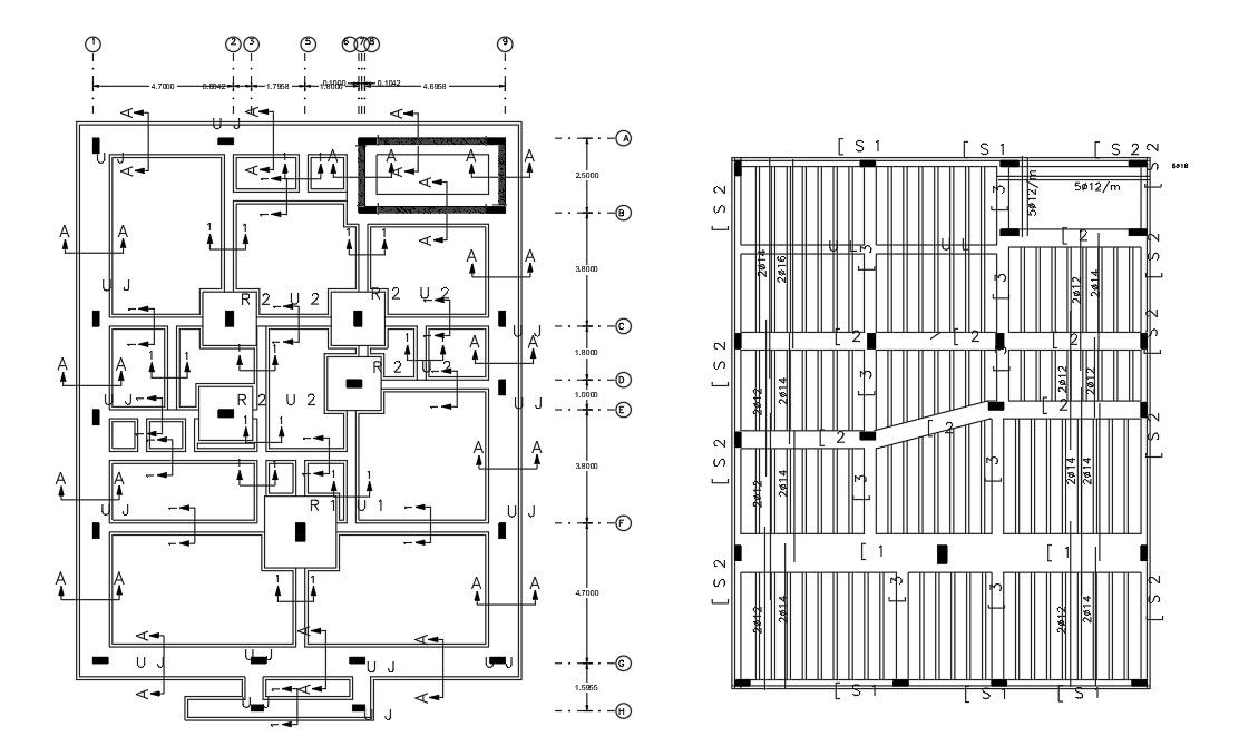
this is the drawing of column footing detail with centerline plan, working dimension details, beam and column marking in slab details, excavation line in plan and other more details in it.
Uploaded by:
Rashmi
Solanki

