Single Floor Simple Elevations And Sections AutoCAD Drawing
Description
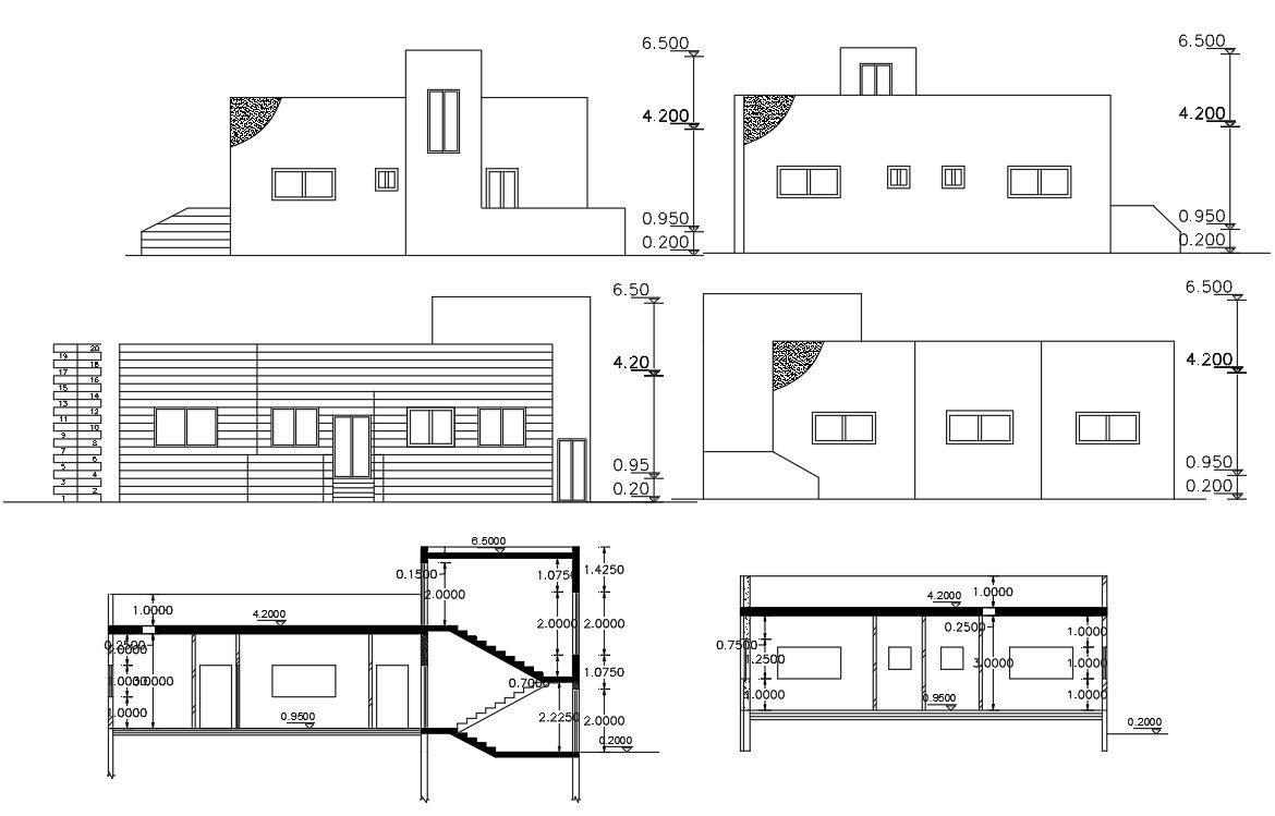
this is the drawing of architectural simple elevations and sections with floor levels dimensions, hatching desing in elevations, stair section, doors and windows marking in both. download the DWG file.
Uploaded by:
Rashmi
Solanki

