Architectural Bungalow Layout Plan With Dimension AutoCAD File
Description
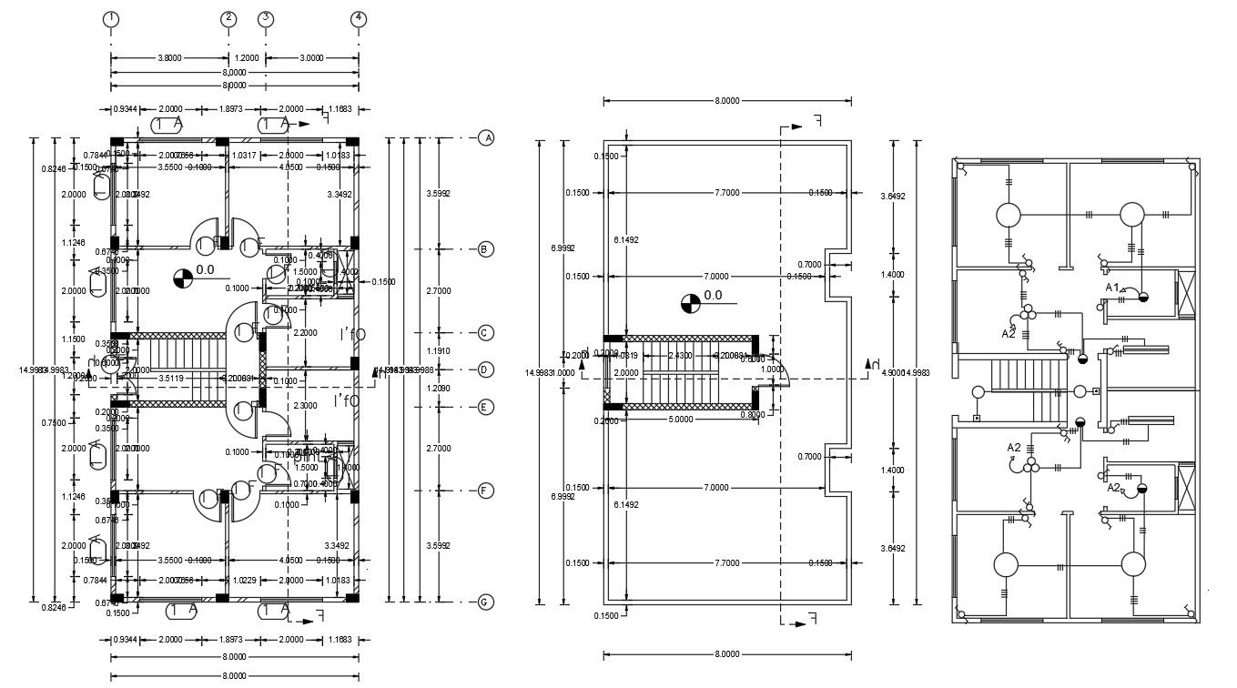
this is the drawing of bungalow layout with working drawing dimension details, column layout details, terrace floor plan with stair cabin, electrical layout plan with much more other details related to drawing.
Uploaded by:
Rashmi
Solanki

