Column Foundation With RCC Slab Structure Design DWG File
Description
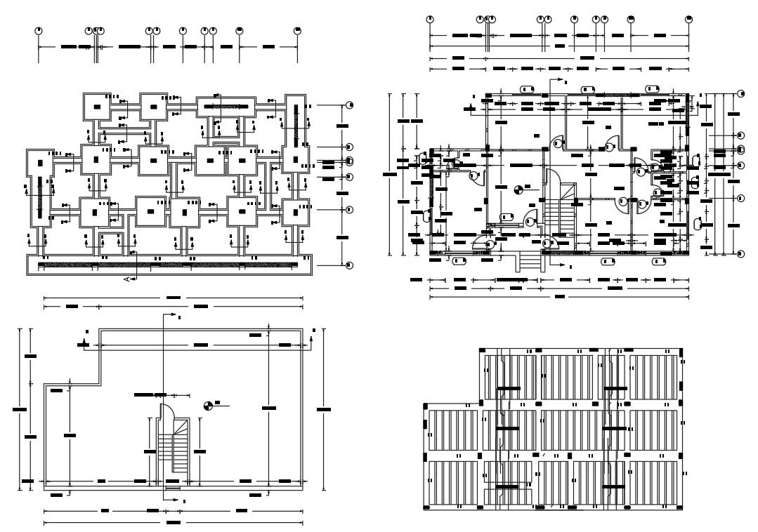
2d CAD drawing of column foundation structure design with RCC slab bar bending structure design, also find in and out bond the Bar bending schedule for steel reinforcement in the slab structure design. download DWG file of RCC foundation structure design AutoCAD drawing.
Uploaded by:

