Bungalow Floors Plan With Working Drawing And Terrace floor
Description
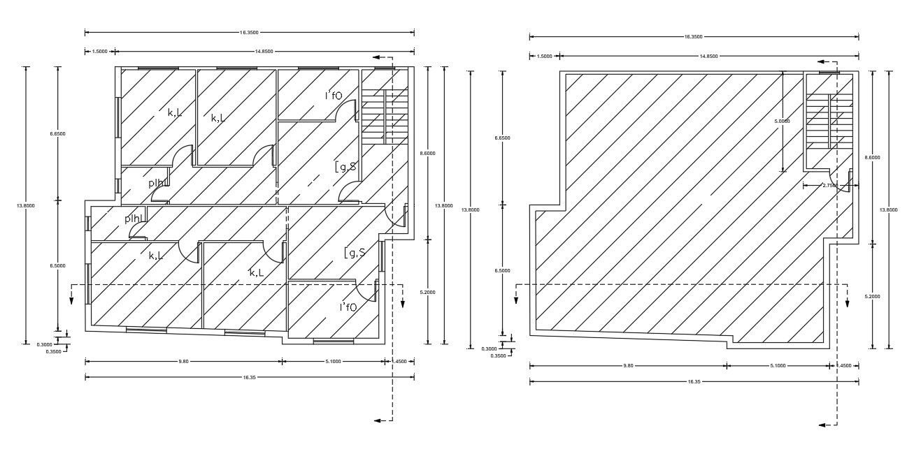
this is the drawing of residential bungalow floors plans with working drawing dimension details, terrace floor plan, doors and windows marking in plan, hatching design and other more details.
Uploaded by:
Rashmi
Solanki

