Shop Complex Construction Working Plan CAD Drawing
Description
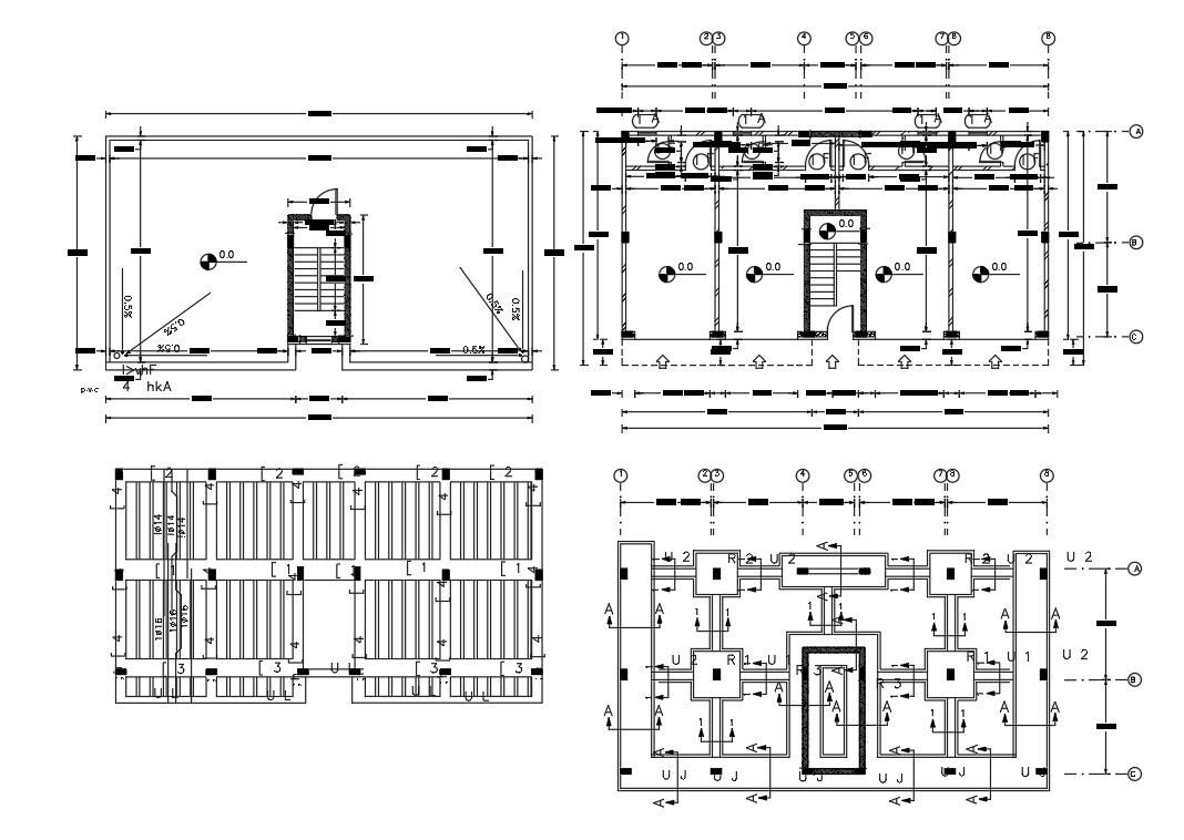
2d CAD drawing of architecture shop complex building construction foundation column layout plan and reinforcement slab bar structure with margin dimension detail. download DWG file of RCC constructure building plan design.
File Type:
DWG
File Size:
140 KB
Category::
Construction
Sub Category::
Construction Detail Drawings
type:
Gold
Uploaded by:

