House Column Foundation Design With Slab Bars DWG File
Description
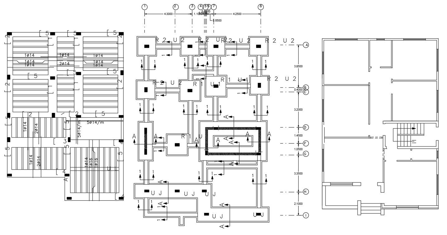
this is the drawing of structural column footing details with centerline plan, dimension details, slab reinforcement bars calculation, excavation marking in plan, section line in plan, shea wall and other more detail.
Uploaded by:
Rashmi
Solanki

