Architecture House Floor Plan Design AutoCAD Drawing
Description
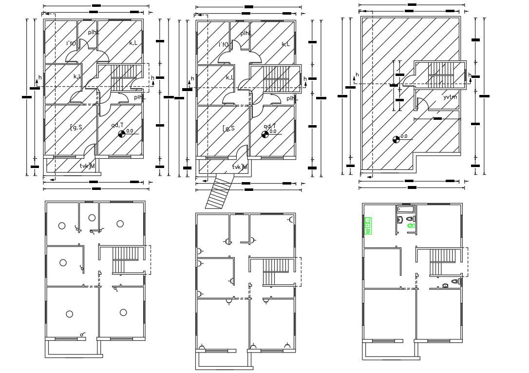
The architecture residence house ground floor and first-floor plan with terrace plan design CAD drawing includes room layout drawing, electrical wiring plan design, sanitary ware and all dimension detail. download AutoCAD house floorplan with hatching design CAD drawing.
Uploaded by:

