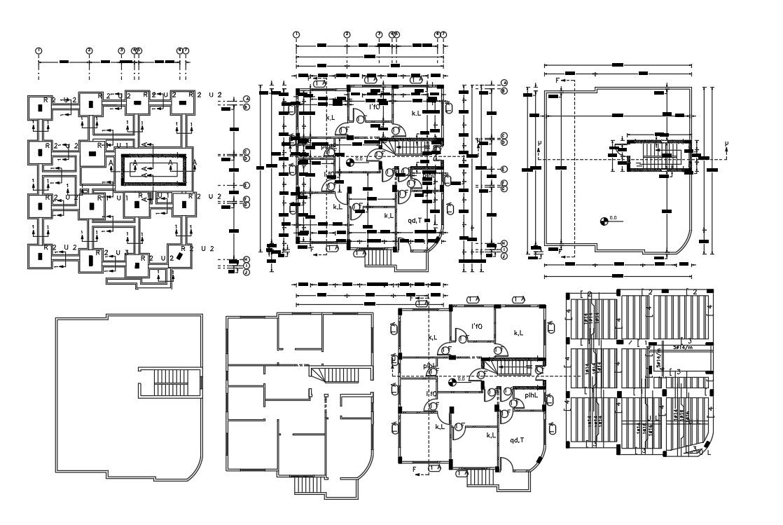
Column Footing Plan With RCC Slab Bar Structure Design
Description
2d CAD drawing of construction working floor plan and terrace plan design with margine dimension. download AutoCAD house plan drawing and get more detail of column footing with excavation plan and reinforcement slab bar structure design.
Uploaded by:

