Architecture House Building Design AutoCAD Drawing
Description
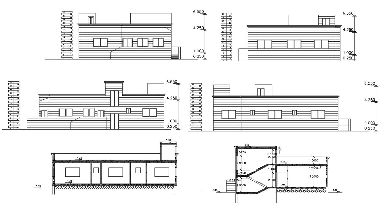
Single storey house building sectional elevation design with dimension detail. which are viewed from a number of different angles and can also go with different outdoor designs, and each design place a significant role in AutoCAD format.
Uploaded by:

