Residential And Commercial Building Working Drawing Plan DWG
Description
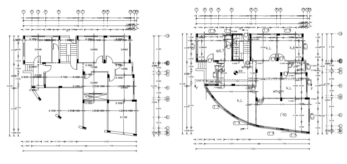
this is the drawing of residential and commercial building design with working drawing dimension details, structural column layout details, centerline plan, download the architectural planning and use in related project.
Uploaded by:
Rashmi
Solanki

