Structural Column Footing Design With Slab AutoCAD Drawing
Description
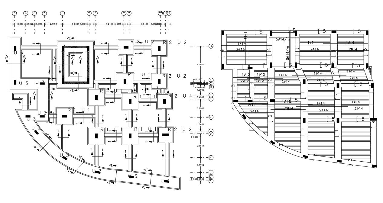
this is the structural drawing of column foundation details with excavation line plan, section line in plan, centerline, working drawing dimension and beam and column marking in slab details. free download this drawing.
Uploaded by:
Rashmi
Solanki

