Apartment Floor Plan Design With Dimension CAD Drawing
Description
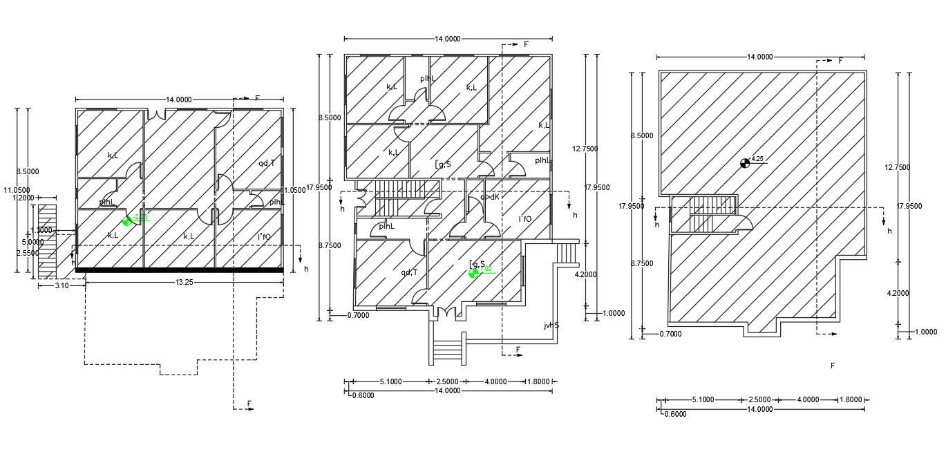
Download Architecture AutoCAD drawing of apartment house floor plan design with dimension design and hatching design. also get more detail of the terrace plan with build-up area detail.
Uploaded by:

