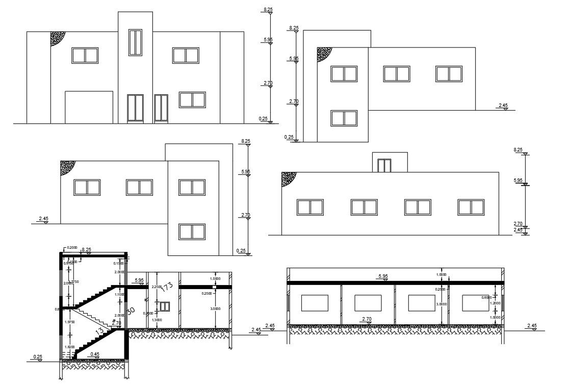
Four Side House Elevations And Sections AutoCAD Drawing
Description
this is the simple drawing of residential building elevations and sections desing with floor levels dimension, stair standard sections and other more detail related to drawing. free download this drawing and use in related project.
Uploaded by:
Rashmi
Solanki
