Terrace Floor With Slab Structural Drawing AutoCAD File
Description
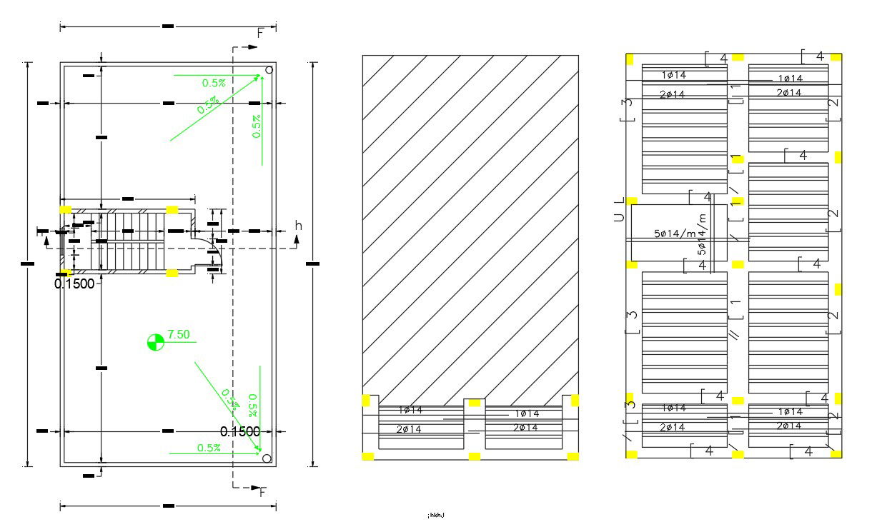
in this drawing shown the building terrace floor with column, stair cabin, dimension and rainwater pipes marking also added beam and column marking in slab plan some reinforcement bars details in this drawing.
Uploaded by:
Rashmi
Solanki

