Electrical Plan Of House Building Design And Column Marking DWG
Description
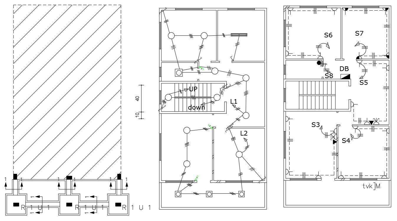
free download this drawing which is related to residential electrical plan of two floors, column footing layout plan and excavation line design.this is the architectural house simple plan.
Uploaded by:
Rashmi
Solanki

