Structural Column Foundation And Excavation Layout AutoCAD File
Description
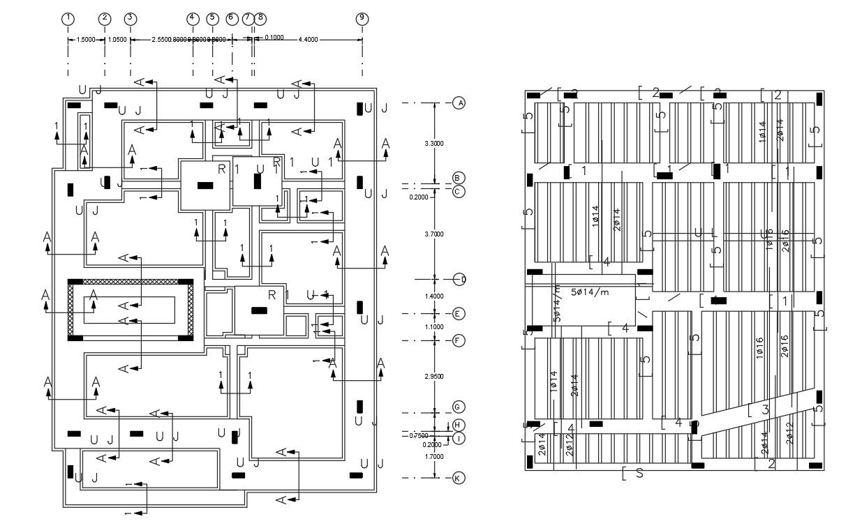
this is the drawing of column footing details and centerline plan working dimension, beam and column marking in slab some reinforcement bars details in this drawing, download this drawing and use related project.
Uploaded by:
Rashmi
Solanki

