Electrical And Plumbing Design Of Residential Building AutoCAD
Description
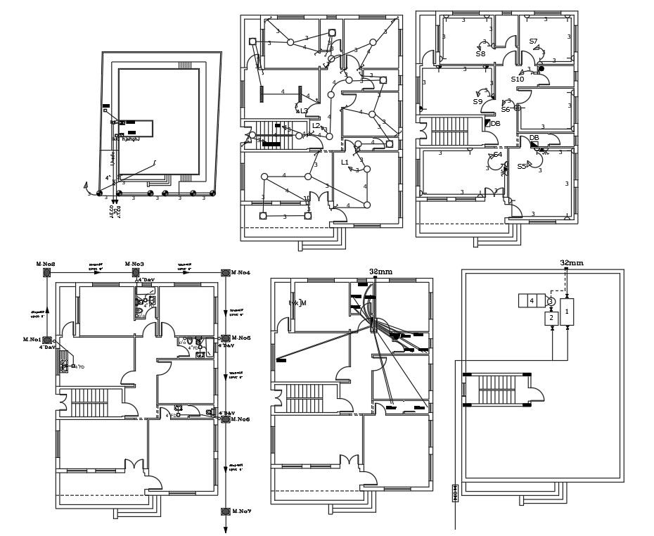
download the residential house electrical plan and plumbing details with ground floor manhole marking design, survey site and building demarcation design, terrace floor plan,toilet sanitary layout and other more details.
File Type:
DWG
File Size:
89 KB
Category::
Dwg Cad Blocks
Sub Category::
Autocad Plumbing Fixture Blocks
type:
Free
Uploaded by:
Rashmi
Solanki

