Free House Building Elevation Design AutoCAD Drawing
Description
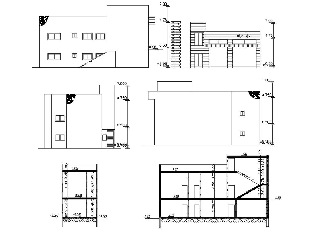
2D CAD drawing of residence house building sectional elevation design with dimension detail. also has RCC floor and slab structure detail. download DWG file of house building design CAD drawing.
Uploaded by:

