Two Story Residential Building Sections Design AutoCAD Drawing
Description
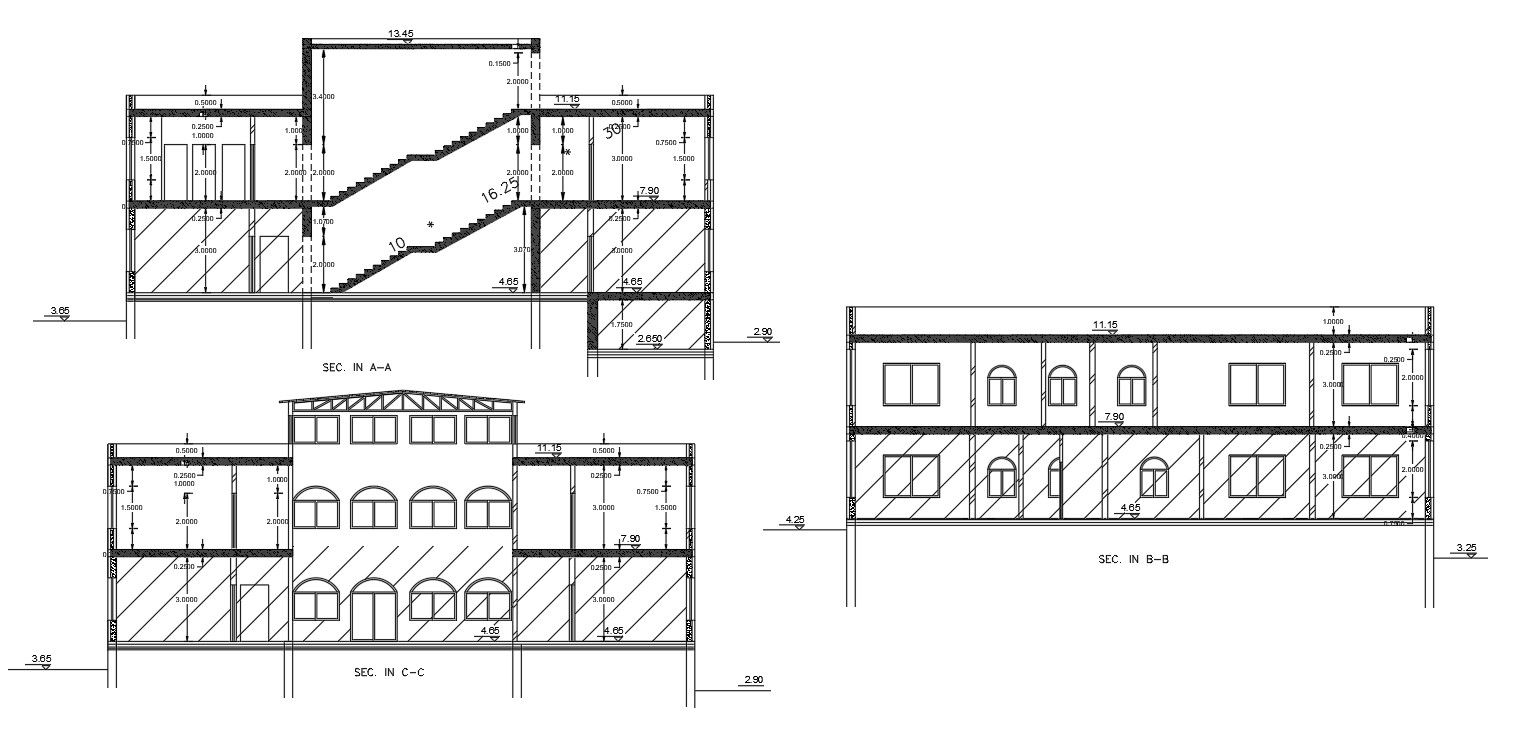
download the three sections of house building design with floor levels dimension details, sectional elevations in one details which are related to truss in the middle part, standard stair section,semi-round shape window design and other more structural details in this drawing.
Uploaded by:
Rashmi
Solanki

