House Plan With Plumbing Layout CAD Drawing
Description
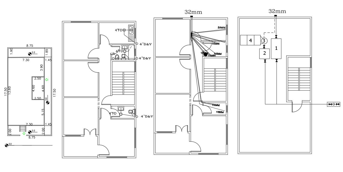
2d CAD drawing of house ground floor plan includes drainage line and plumbing pine line layout plan also has a solar water heater on terrace plan design. download AutoCAD house plan and get more detail of the site plot with land margine dimension detail.
Uploaded by:

